Lonbar
Fantástica casa junto al campo de golf de Llavaneras
Fantástica casa junto al campo de golf de Llavaneras
Casa de planta única en zona exclusiva de Sant Andreu de Llavaneres. Cerca del campo de golf y a pocos minutos en coche de Barcelona al sur y la Costa Brava al norte.
El total de la parcela es de 3.500m2. 3.000m2 son de jardín. La casa tiene 400m2
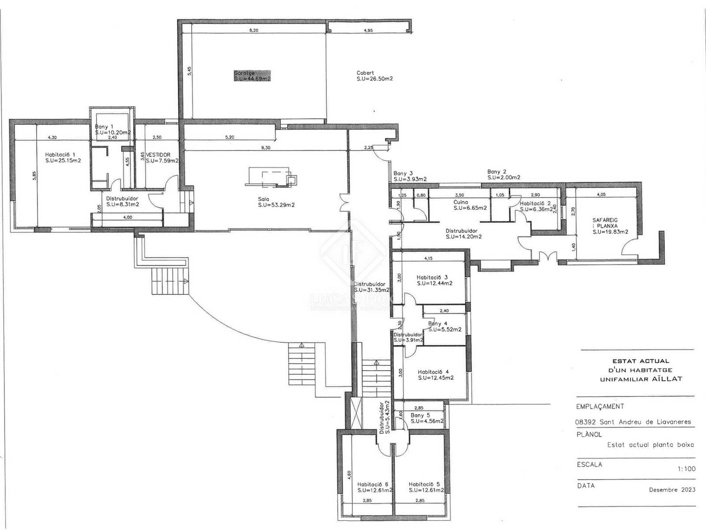
Al acceder a la parcela, una gran entrada nos ofrece espacio para aparcar los coches propios y de nuestros invitados. Desde aquí, la puerta de entrada nos da acceso a un distribuidor que delimita claramente la zona de disfrute y ocio, la zona de descanso y el jardín. El salón-comedor de grandes dimensiones ofrece unos grandes ventanales con vistas al mar y está presidido por una chimenea que aporta mucha calidez. Desde el salón, bajando cuatro escalones, entramos en el enorme dormitorio principal que dispone de una zona de estudio, un gran baño, un vestidor y de salida directa al jardín.
Al volver a la entrada, a la izquierda encontramos la zona de cocina y trabajo, con una generosa zona de aguas, así como la zona de servicio a continuación, con dormitorio y baño. Siguiendo el pasillo con unos ventanales que inundarán de luz la casa, llegamos a dos dormitorios exteriores con grandes ventanales y con un baño completo anexo. Al final de este pasillo, bajando seis escalones, llegaremos a otros dos dormitorios dobles con un baño completo.
La zona de jardín destaca por su piscina de cloración salina, una gran zona de barbacoa y un porche ideal para cualquier época del año.
Superficie: casa 400m2 / terreno 3.500m2
Habitaciones: 6
Baños: 4
Precio de venta: 1.390.000€
Share














































